環鏈斗式提升機結構分析及物料的運行原理
斗式提升機被廣泛使用
粒,煤,水泥,礦石破碎等粉狀,顆粒狀,小塊狀的磨料吸收性較差的大塊物料,在垂直運輸中無法與斗式提升機分離,可見斗式提升機應用較為廣泛.
斗式提升機是材料(產品)的垂直升降高度必須滿足生產工藝的要求,由斗式提升機被驅動和從動輥,傳送帶,和傳送帶安裝在料斗(鏟斗)的組合物。皮帶斗式提升機適用于低處往高處提升,供應物料通過振動臺投入料斗后機器自動連續運轉向上運送。根據傳送量可調節傳送速度,并隨需選擇提升高度,料斗為自行設計制造,PP無毒料斗使該型斗式提升機使用更加廣泛,所有尺寸均按照實際需要設計制造,為配套立式包裝機,電腦計量機設計,適用于食品、醫藥、化學工業品、螺絲、螺帽等產品的提升上料,可通過包裝機的信號識別來控制機器的自動停啟。
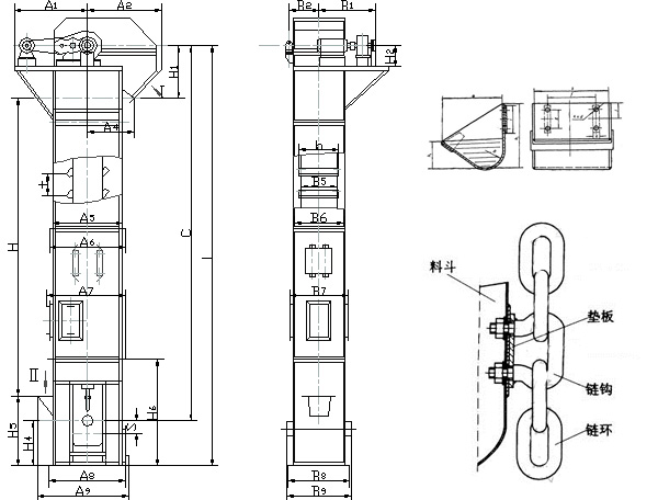
環鏈斗式提升機結構分析
適用于低處往高處提升,供應物料通過振動臺投入料斗后機器自動連續運轉向上運送。ne斗式提升機利用均勻固接于無端牽引構件上的一系列料斗,豎向提升物料的連續輸送機械,斗式提升機利用一系列固接在牽引鏈或膠帶上的料斗在豎直或接近豎直方向內向上運送散料[1]。分為環鏈、板鏈和皮帶三種。每個料斗由專用鏈路鉤住,用螺釘和墊圈安裝在所述輸送機鏈條。由機動滑輪(鏈輪)鏟斗操作驅動的傳送勻速旋轉,同時地,連續且均勻地進入材料料斗被輸送到料斗的頂部,料斗上升到360度,離心力的材料料斗落下旋轉它被拋出到鏟斗拼接板,引入下一個處理。牽引部件,料斗,驅動裝置,張緊裝置,驅動輪,張緊輪,和其它情況。
運行原理牽引部件傳送帶或鏈:
與已知為鏈斗式提升機的牽引構件的鏈條斗式提升機。斗式提升機使用淺桶,深斗,斗導向槽,桶,脫水桶等的組合主料斗中,可以根據材料性能和卸載模式被選擇。驅動裝置包括一個電動機和傳動裝置。驅動輥也可以是驅動輪(牽引構件是傳送帶),或鏈輪驅動(牽引構件是鏈)。
驅動連接到驅動輪手段,使斗式提升機獲得動力并驅動其操作。斗式提升機通常螺旋形或錘式張緊裝置,所述張緊鏈輪的張緊輪或張緊輥,張緊連接到所述張緊輪,所述牽引構件的必要的初始張力的裝置,以確保斗機的運行。頭部的斗式提升機殼體分成三個部分,中間和尾巴。頭驅動裝置和殼體,所述驅動輪,斗式提升頭組成,殼體的頭部的形狀應根據材料拋出軌跡被設計,以確保材料排出從料斗能順利進入放電容器。尾殼體和張緊裝置,所述張緊輪,斗式提升機組合物尾,殼體材料的尾部形狀應與裝載模式兼容。
河南奧創機械是一加以篩分輸送為主的通用機械生產單位!
訂購網址請登錄河南奧創機械有限公司官方網站:www.pcshares.com.cn 24小時服務熱線:13353676726


