DZF系列振動放礦機介紹
DZF型振動放礦機廠家介紹特點型號參數表,DZF系列振動放礦機是一種以振動電機為激振源的顛振型慣性振動放礦設備,廣泛適用于冶金、化工、建材、煤炭等礦業。是礦石及其它物料的放出,給料或裝車的理想設備。
DZF型振動放礦機特點
1、DZF型振動放礦機體積小,重量輕,結構簡單緊湊,投資少;
2、DZF型振動放礦機安裝方便,維修量小,運行費用低;
3、因受振礦巖物料流動性增大,減小通道堵塞現象,故DZF型振動放礦機放礦能力大,效率高;
4、DZF型振動放礦機受振礦流連續、均勻、易控,礦流大小可根據需要調整,運行安全可靠。
5、DZF型振動放礦機在超共振狀態下工作,振幅穩定,可以頻率起動(起動次數≤200次/時),允許振動臺板上的負載有較大的波動,對各種礦巖特別是粘性礦巖物料適應性較強,并可在多塵或含水較多的環境下工作。
6、DZF型振動放礦機耗電少,節能顯著; 7、凡礦巖物料松散體重不大于2400公斤/米3、塊度不大于1000毫米或1000毫米以下直至粉礦,均可選用DZF型振動放礦機。
礦山振動放礦機就是一般意義上說的喂料機,只是因為各個地方的叫法不同,所以產生了不同的名字,而其本質和作用,基本上是一樣的。振動給料顧名思義也就是在振動過程中均勻下料,優點是給料均勻,可根據控制電機的振動頻率(交流電機一般用變頻器來完成)來控制料位均勻地大(小)下料 。結構簡單,運行可靠,調節安裝方便,重量輕,體積小,維護保養方便,當采用封閉式結構機身時可防止粉塵污染。
礦山振動放礦機屬于礦山機械設備的一部分。產品配置在初級破碎設備之前,在連續均勻主送大塊物料的同時,除去物料中的泥土,雜質,控制給料量,使之與之后續破碎,篩分生產線的處理能力相匹配,是成套生產線上的必備設備,具有結構合理,抗沖擊,耐磨損等特點。
振動放礦機產品對環境條件要求如下:
1、環境溫度不大于+40℃;
2、空氣相對溫度不大于90%;
3、可用于多塵和臺極上載礦量有較大波動的場合。

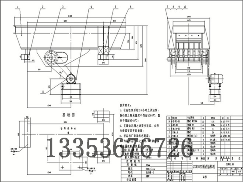
振動放礦機型號參數表:
河南鵬威機械設備有限公司專業生產各種通用設備,振動設備商家
訂購網址請登錄河南鵬威機械有限公司官方網站:www.pcshares.com.cn 24小時服務熱線:13353676726